3. LES QUESTIONNEMENTS

 

Trois grands questionnements orientent le travail de l’agence.

Ils traversent tous les projets à des degrés divers, mais font forcément l’objet de choix raisonnés à chaque fois.

Il est d’ailleurs curieux que ces 3 questionnements se croisent de telle façon que les réponses pourraient s’intervertir, comme si elles faisaient elle-même « système ».

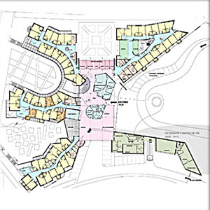
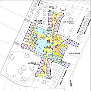
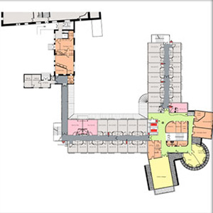
Pour illustrer ce propos, les 13 plans réduits de maisons de retraite ci-contre montrent que, par exemple, la question de l’hébergement des personnes âgées chaque fois reposée dans des contextes différents, avec des interlocuteurs différents, peut donner des réponses très différentes : diversité culturelle, ambition sociale, peur de la facilité !

 

A. De la diversité culturelle

« La diversité culturelle est gravement menacée par une mondialisation qui tend à uniformiser les imaginaires » (Commission Française du Développement Durable).

Il est paradoxal que les projets publiés, souvent très démonstratifs en promesses de développement durable, soient très uniformes, niant l’identité culturelle des territoires comme facteur du développement soutenable. L’avenir de la planète est-il dans une grande uniformisation où les identités seraient limitées à des enclaves pittoresques à vocation touristique ? Ou alors à de fausses identités plaquées (des pastiches) ? Quel est le sens des valeurs régionales aujourd’hui ? Dit autrement, l’ancrage et l’enracinement sont-ils des valeurs positives aujourd’hui ? De quelle échelle culturelle sommes-nous porteurs, ici et maintenant : celle d’une région ou celle du monde ?

Cette question est celle de la modernité. Une toiture en tuiles peut-elle être moderne ?

Cette question interroge aussi sur ce qui fait l’opinion des décideurs comme celle des non-décideurs ; c’est la question du rôle des médias dans la diffusion de la culture architecturale.

 

B. Toujours, l’ambition sociale des métiers de l’espace

Fernand Pouillon, Patrick Bouchain : la même envie de pousser les limites, de changer les conditions de l’exercice pour aller plus loin. Dans le mode de production pour Pouillon, dans la participation pour Bouchain. Mais toujours cet enthousiasme, ce plaisir de construire pour les hommes bien loin des introversions plastiques.

Pour tous les deux, construire est une fête.

Au-delà de l’écume des productions d’images qui inondent aujourd’hui écrans et paysages jusqu’à les confondre, quels sont les lieux de pratique de l’architecture contemporaine dans une perspective de transformation de la société ? L’architecture a-t-elle un pouvoir potentiel en ce sens ?

Comment retrouver l’esprit révolutionnaire de l’architecture moderne sans se poser en héraut donneur de leçon d’un nouvel ordre plastique qui ne serait que l’habillage d’un ordre social établi ?

Comment positionner des alternatives aux modes de production, que ce soit en phase de conception ou en phase de réalisation ?

 

C. La facilité doit nous hanter

Même en prenant en compte les contraintes thermiques ou sismiques nouvelles, la construction d’un bâtiment restera toujours beaucoup plus simple que la fabrication d’une fusée pour Mars.

Une autre complexité, autant artificielle que réelle, s’est pourtant peu à peu immiscée, celle des procédures de production (conception et réalisation).

C’est comme si nos métiers avaient un besoin de complexification, nécessaire pour justifier leur rôle social, à l’heure où n’importe qui peut dessiner sa maison avec un logiciel pour enfant, et quasiment la commander en ligne.

Aujourd’hui, nos moyens de production sont tels que l’on est techniquement capable de tout construire. Il est donc facile de sur-complexifier: prouesses de porte-à-faux, formes molles, délais impossibles, … C’est juste une question de moyens.

L’enjeu technique seul n’est donc plus intéressant, surtout s’il s’agit d’une course à l’image la plus spectaculaire, celle qui justifiera un article dans la revue : la revue passe, les bâtiments restent.

Cette facilité de construire doit nous hanter : c’est trop facile de construire compliqué ! c’est trop facile de laisser une trace dans le paysage !

Rechercher l’économie de moyens, trouver des détails articulant logiquement les éléments, tel est le travail patient et indispensable qui fait du sketch des oranges de Fernand Raynaud une référence plus forte pour nous que n’importe quelle photographie sur papier glacé.

 

Malgré l’informatique, indispensable leurre, les pratiques de conception restent artisanales, car notre pensée n’est pas construite selon les processus qu’imposerait une vraie démarche systémique.

Pourtant, le vrai défi intellectuel contemporain serait de passer le cap où cette complexité ne serait plus artificielle mais réelle. Elle prendrait en compte les enjeux sociétaux qui eux, sont vraiment complexes : quel modèle social voulons-nous ? quel appareil productif faut-il développer ? quel dialogue participatif inventer ?

C’est l’objet de l’effort de « modélisation » permanente, de « lisibilité » externe de notre travail, afin de rendre accessibles à tous les articulations de nos choix, sans la peur de l’artiste qui ne veut pas se dévoiler, mais avec la grande envie de faire partager notre enthousiasme pour participer à la construction un nouveau monde.

 

LA DEMARCHE

2 - Les racines >